Les travaux d’aménagement de voirie se sont achevés en avril 2023.
Afin de rendre possible la cohabitation entre les différents modes de déplacement, les règles de circulation ont évolué.
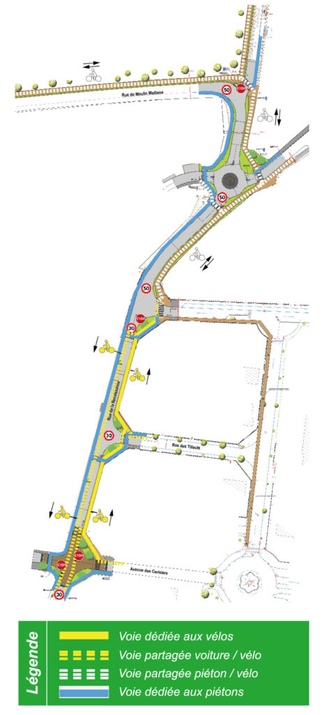
Faciliter les déplacements à vélo
Le plan ci-contre vous présente les règles de circulation en fonction de votre mode de déplacement et du sens dans lequel vous circulez.
Des voies dédiées aux cyclistes ont été créées sur certaines portions de la rue de la Renaissance, dans le sens montant. Elles sont réservées uniquement aux vélos. Les piétons doivent utiliser l’autre trottoir (tracé bleu).
Au nord de l’avenue des Acacias, la voie est partagée entre le piéton et le vélo (tracé blanc), dans les deux sens.
Pour descendre la rue de la Renaissance, à partir de l’avenue des Acacias, le vélo doit partager la voie avec la voiture. Sur cette portion, jusqu’à l’avenue Gautier, la vitesse a été réduite à 30 km/h.
Zone 30 : quelles sont les règles ?
Une zone 30 est un espace où tous les usagers de la route doivent respecter une limitation de vitesse fixée à 30 km/h. Cet espace est annoncé par une signalisation spécifique (panneau et marquage au sol à l’entrée).
Dans ces zones, les cyclistes peuvent emprunter les routes dans les deux sens de circulation. Ces aménagements permettent un meilleur partage de la chaussée et assurent une sécurité supplémentaire pour les usagers vulnérables grâce à une vitesse des véhicules réduite.
Se partager l’espace public en toute sécurité
Que vous soyez piéton, cycliste ou automobiliste, chaque usage de la route doit se faire dans le respect des règles. Une signalétique spécifique a pour cela été mise en place.
Montant prévisionnel des travaux :
Aménagements de voirie : 466 000 € // Liaisons douces : 210 000 €
Subvention (DETR) : 90 000 €


